
3071 Dumont WAY Regina, SK S4V3Z5
6 Beds
4 Baths
1,753 SqFt
UPDATED:
Key Details
Property Type Single Family Home
Sub Type Freehold
Listing Status Active
Purchase Type For Sale
Square Footage 1,753 sqft
Price per Sqft $393
Subdivision The Towns
MLS® Listing ID SK022255
Style 2 Level
Bedrooms 6
Year Built 2025
Lot Size 3,560 Sqft
Acres 3560.0
Property Sub-Type Freehold
Source Saskatchewan REALTORS® Association
Property Description
Location
State SK
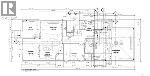
Rooms
Kitchen 2.0
Extra Room 1 Second level 12 ft X 12 ft Primary Bedroom
Extra Room 2 Second level Measurements not available 4pc Ensuite bath
Extra Room 3 Second level 9 ft , 8 in X 11 ft , 4 in Bedroom
Extra Room 4 Second level 9 ft , 8 in X 10 ft , 4 in Bedroom
Extra Room 5 Second level Measurements not available 4pc Bathroom
Extra Room 6 Second level 13 ft X 10 ft Bonus Room
Interior
Heating Baseboard heaters, , Forced air,
Cooling Central air conditioning
Exterior
Parking Features Yes
View Y/N No
Private Pool No
Building
Story 2
Architectural Style 2 Level
Others
Ownership Freehold
GET MORE INFORMATION






